天王町 中古戸建
new

     
価格
6980万円
中古戸建
間取
5SLDK

所在地 大阪府高槻市天王町
交通 阪急京都本線高槻市駅 徒歩15分
JR東海道・山陽本線高槻駅 徒歩25分
築年月 2010/12/01 新築/中古 中古
面積 129.32m² 計測方式
バルコニー 向き
建物階数 地上2階  部屋階数 2階
部屋/区画番号 総戸/区画数
建物構造 木造
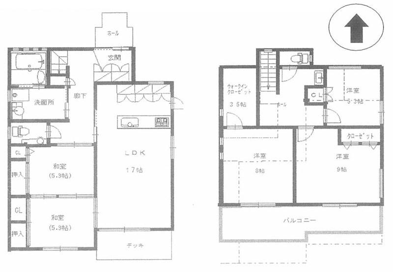
間取内容 LDK17.0畳 1階 1室  和室5.3畳 1階 2室  洋室9.0畳 2階 1室  洋室8.0畳 2階 1室  洋室5.3畳 2階 1室  S3.5畳 2階 1室  
+屋根裏収納
駐車場 空有  取引態様 仲介
引渡/入居時期 期日指定 2026年2月中旬 中旬 現況 空家
地目 宅地 用途地域 第一種低層住居専用地域地
都市計画 市街化区域 地勢 平坦
土地面積 160.02m² 土地面積計測方式 公簿
建ぺい率 50% 容積率 100%
土地権利 所有権 接道状況 一方
接道方向1 接道間口1 9.5m
接道種別1 公道 接道幅員1 5.0m
周辺環境 北大冠小学校 第六中学校
設備・条件 リノベーション システムキッチン カウンターキッチン 給湯 ユニットバス トイレ2箇所 バス・トイレ別 温水洗浄便座 W.INクローゼット 全居室収納付 駐車場有 駐輪場 バルコニー
物件番号 2601099
自社物 状態 売出中

☆2026年2月リフォーム完成予定

☆阪急高槻市駅徒歩約15分、JR高槻駅徒歩約25分

☆5SLDK+屋根裏収納+駐車スペース有

☆土地面積約48.40坪

☆前面道路幅員約5.0m、接道間口約9.59m

◆設備◆

全室クロス・CF張替、2階洋室改造、畳新調、収納建具1カ所、襖・洗面台・2階トイレ便器・ユニットバス・電気温水器取り換え、門柱・ポスト新設等

◆周辺施設◆

ローソン高槻緑町店 (304m)
ローソン天王店 (456m)
業務スーパー高槻店 (594m)
万代高槻緑町店 (686m)
ココカラファインエミル高槻店 (1202m)
ダイソー万代高槻緑町店 (684m)
社会医療法人東和会第一東和会病院 (666m)
安満遺跡公園 (878m)
高槻天王郵便局 (169m)
京都中央信用金庫高槻支店 (530m)

ローンシュミレーション

物件価格
万円
頭金
万円
 ▶︎▶︎▶︎▶︎▶︎
月々の返済額

※35年金利0.45%(変動金利)での算出となります。別途諸費用が必要となります。

  • 高西町 中古戸建3480万円 6SLDK 高槻市 高西町阪急京都本線高槻市駅
  • up
※物件掲載内容と現況に相違がある場合は現況を優先と致します。

お問合せ先

近畿ハウジング株式会社 私たちがお手伝いします。お気軽にご連絡ください。
住所 〒569-0802 大阪府高槻市北園町16番22号
電話番号 072-691-0055
営業時間9:00~19:00
定休日 火曜日・水曜日
代表者 堀部 真史
免許番号 大阪府知事(4)第51913号
加盟団体 (社)全日本不動産協会 (社)近畿地区不動産公正取引協議会 (社)不動産保証協会

物件お問合せフォーム

この物件に関するお問合せは下記のフォームにご記入のうえ、「お問い合わせ内容を送信する」ボタンをクリックしてください。
3営業日以内に担当者より返信させていただきます。

    件名 ※件名は変更できません
    お名前 *必須  例)鈴木一郎
    お名前(ふりがな) *必須  例)すずきいちろう
    メールアドレス *必須  例)abcde@sample.com
    電話番号または
    携帯電話番号 *必須
    例)031112222(半角数字・ハイフン不要)
    ※ご見学を希望される場合は、お電話にてご連絡を差し上げる場合がございます。
    ご住所
    例)○○県○○市1丁目1-1
    購入希望時期
    ご希望される項目を
    お選びください
    この物件を詳しく教えて欲しい物件を実際に見たい資料を送って欲しい家探しについて相談したい資金計画の相談がしたい
    その他ご連絡事項など
    上記内容でよろしければ、チェックして [送信する>> ] をクリックして下さい。

    万一弊社担当からの返信が3営業日に届かない場合、ご記入されたメールアドレスが間違っていたか、迷惑メールに振り分けられている可能性がございます。
    今一度ご確認いただけますようお願い申し上げます。